Dom 146m2 gotowy do zamieszkania Osełków gm Łączna
Mam przyjemność zaprezentować Państwu ofertę sprzedaży wyjątkowej nieruchomości, położonej w malowniczej i spokojnej miejscowości Osełków, gmina Łączna. To idealna propozycja dla osób poszukujących komfortowego domu gotowego do zamieszkania, z dala od miejskiego zgiełku, a jednocześnie z dobrym dojazdem do większych miejscowości.
DOM – przestronny,
W skład nieruchomości wchodzi dom parterowy z poddaszem użytkowym z 2018 r. o powierzchni użytkowej całkowitej 145,91 m2, usytuowany na działce o powierzchni 700 m².
Dom został wybudowany i wykończony z dużą dbałością o jakość materiałów, funkcjonalność oraz komfort przyszłych mieszkańców. Nieruchomość znajduje się w bardzo dobrym stanie technicznym i nie wymaga żadnych dodatkowych nakładów finansowych.
W skład domu wchodzi:
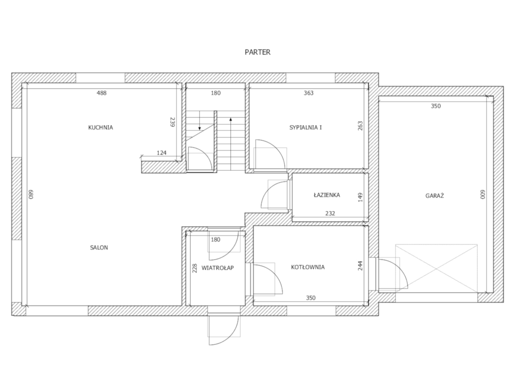
PARTER
– kuchnia (12,66 m2)
– salon (20,01 m2)
– łazienka (3,46 m2)
– pokój I (9,51 m2)
– hall + schody (7,40 m2)
– kotłownia (8,67 m2)
– wiatrołap (4,37 m2)
– garaż (21,00 m2)
– pomieszczenie gospodarcze (2,36 m2)
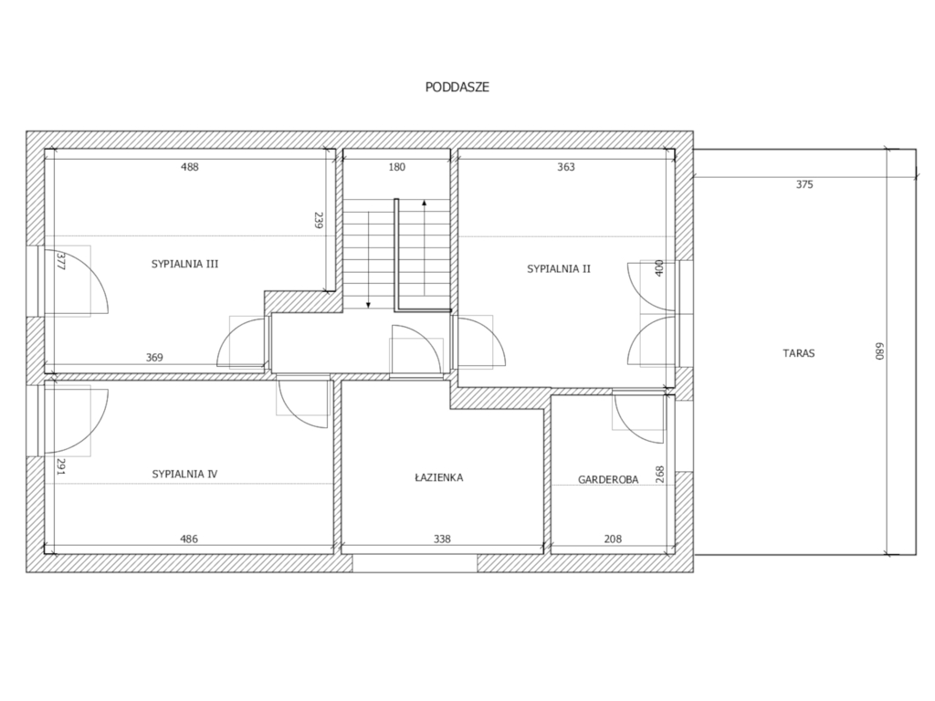
PODDASZE
– hall + schody (8,00 m2)
– pokój I (14,76 m2)
– garderoba (5,57 m2)
– pokój II (14,16 m2)
– pokój III (16,92 m2)
– łazienka (9,22 m2)
– taras (45,5 m2)
Przemyślany układ pomieszczeń zapewnia wygodę zarówno rodzinie z dziećmi, jak i osobom pracującym zdalnie.
STAN DOMU
Dom w bardzo dobrym stanie – gotowy do zamieszkania.
– budynek murowany z pustaka ceramicznego, ocieplony styropianem grafitowym 15 cm
– okna: PCV trzyszybowe
– pokrycie dachowe: blacha
– podłogi: płytki ceramiczne, panele, wylewka betonowa
– schody betonowe obłożone drewnem dębowym
– ogrzewanie/ciepła woda: nowoczesny piec na pellet z technologią Flame Control z zasobnikiem c.w.u. 150 litrów
– ogrzewanie podłogowe
– alternatywne ogrzewanie: możliwość montażu kominka
– meble kuchenne z pełnym wyposażeniem: lodówko-zamrażarka, piekarnik elektryczny, kuchenka mikrofalowa, płyta indukcyjna, zmywarka
DZIAŁKA
Działka o powierzchni 700 m², o regularnych wymiarach ok. 25 x 27 m, daje szerokie możliwości aranżacyjne – zarówno pod ogród, strefę rekreacyjną, jak i plac zabaw dla dzieci.
– teren częściowo ogrodzony
– ogrodzenie zakupione – gotowe do montażu
– dojazd drogą utwardzoną
W działce znajdują się podstawowe media:
– sieć wodociągowa
– sieć elektroenergetyczna
– sieć kanalizacyjna
Stan prawny:
Stan prawny działki w pełni uregulowany.
Księga Wieczysta dostępna do wglądu dla kupujących
OKOLICA
Nieruchomość położona jest w miejscowości Osełków, gmina Łączna – w spokojnej, zielonej okolicy, sprzyjającej wypoczynkowi i życiu rodzinnemu. To doskonałe miejsce dla osób ceniących ciszę, przestrzeń i bliskość natury.
Jeśli szukasz nieruchomości z ogromnym potencjałem – zarówno mieszkaniowym, jak i inwestycyjnym – ta oferta jest właśnie dla Ciebie!
Zadzwoń już dziś i umów się na prezentację!
Oferujemy darmową obsługę procesu kredytowania zakupu nieruchomości. Współpracujemy z wieloma bankami, dzięki czemu zawsze szukamy najtańszego dla Państwa rozwiązania.
Osoba odpowiedzialna za transakcję:
Paulina Piasta
tel. 603 550 212
Biuro Nieruchomości Family House
Oddział Skarżysko-Kamienna
Panorama
ul. Piłsudskiego 36
26-110 Skarżysko-Kamienna
tel. 603 550 212





























