Dom 160m2 z ogromnym potencjałem na działce 3500m2
Mam przyjemność przedstawić Państwu ofertą sprzedaży domu wielorodzinnego, położonego przy ul. Cmentarnej w Skarżysku-Kamiennej.
DOM
Marzysz o domu z klimatem, dużą działką i miejscem pod działalność? A może szukasz przestrzeni pod inwestycję z gwarancją wzrostu wartości? Ta oferta łączy w sobie jedno i drugie!
Drewniany piętrowy dom o powierzchni około 160 m2, położony na częściowo ogrodzonej działce o łącznej powierzchni 3437 m2.
W skład nieruchomości wchodzi:
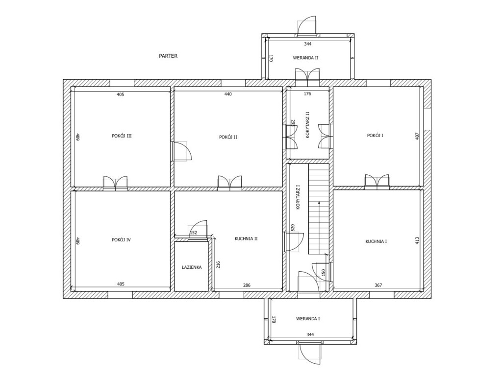
PARTER
– 2 werandy (5,85 m2 każda)
– kuchnia I (14,93 m2)
– pokój I (14,93 m2)
– kuchnia II (14,62 m2)
– pokój II (17,99 m2)
– łazienka (3,0 m2)
– pokój III (16,56 m2)
– pokój IV (16,56 m2)
– korytarz (9,15 m2)
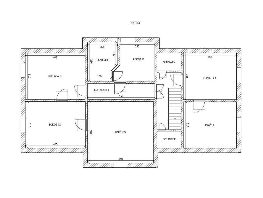
PIĘTRO
– kuchnia I (11,27 m2)
– pokój I (11,34 m2)
– korytarz II (7,14 m2)
– kuchnia II (12,63 m2)
– pokój II (6,55 m2)
– łazienka (5,0 m2)
– pokój III (16,67 m2)
– pokój IV (18,63 m2)
– korytarz II (5,5 m2)
– 2 schowki
STAN DOMU
Dom w stanie do generalnego remontu.
– układ pomieszczeń z dużym potencjałem adaptacji
– budynek drewniany
– okna: PCV oraz drewniane
– pokrycie dachowe: eternit
– podłogi: deska drewniana, płytki ceramiczne
– ogrzewanie/ciepła woda: piecokuchnia, piec gazowy
DZIAŁKA
Nieruchomość położona jest tuż przy drodze krajowej 42, na osiedlu Zachodnie – zaledwie kilka minut od węzła na trasie E7 (Warszawa-Kraków).
Teren objęty Miejscowym Planem Zagospodarowania Przestrzennego jako strefa usługowo-mieszkaniowa, co czyni to miejsce wyjątkowo atrakcyjnym inwestycyjnie.
W niedalekiej przyszłości planowana jest budowa zbiornika wodnego Bzin – inwestycji, która przyciągnie turystów i zwiększy wartość nieruchomości w okolicy.
Na posesji znajdują się również 4 murowane garaże oraz 3 budynki gospodarcze o łącznej powierzchni zabudowy aż 186m2.
W działce znajdują się podstawowe media:
– sieć wodociągowa
– sieć elektroenergetyczna
– sieć gazowa
– szambo
– kanalizacja – możliwość podłączenia
Stan prawny:
Stan prawny działki w pełni uregulowany.
Księga Wieczysta dostępna do wglądu dla kupujących
ATUTY INWESTYCYJNE
– Nieruchomość idealna pod pensjonat, pokoje gościnne, agroturystykę lub hostel
– Strefa usługowo-mieszkaniowa – idealne miejsce na siedzibę firmy, warsztat, biuro, przedszkole czy gabinety
– Rozległa działka z zabudową – gotowa baza do rozbudowy lub przebudowy
– Możliwość łączenia funkcji mieszkalnej i komercyjnej
– Atrakcyjna lokalizacja w kontekście przyszłego rozwoju turystyki (zbiornik Bzin)
– Wysoka widoczność i łatwy dojazd – świetna ekspozycja przy DK42
DLA KOGO TA NIERUCHOMOŚĆ?
– Dla inwestora szukającego gruntu pod działalność
– Dla rodziny z pomysłem na dom pokoleniowy lub pod wynajem
– Dla przedsiębiorcy, który chce połączyć życie prywatne z prowadzeniem firmy
– Dla pasjonata, który chce stworzyć miejsce z duszą – dom, agroturystykę, pracownię, pasiekę
Zobacz to miejsce na własne oczy i przekonaj się, ile możliwości przed Tobą otwiera!
Zadzwoń już dziś i umów się na prezentację!
Oferujemy darmową obsługę procesu kredytowania zakupu nieruchomości. Współpracujemy z wieloma bankami, dzięki czemu zawsze szukamy najtańszego dla Państwa rozwiązania.
Osoba odpowiedzialna za transakcję:
Paulina Piasta
tel. 603 550 212
Biuro Nieruchomości Family House
Oddział Skarżysko-Kamienna
Panorama
ul. Piłsudskiego 36
26-110 Skarżysko-Kamienna
tel. 603 550 212





























