Dom wolnostojący 94m2 malownicza okolica os. Bór
Biuro nieruchomości Family House ma przyjemność przedstawić Państwu ofertę sprzedaży domu parterowego z poddaszem użytkowym, wolnostojącego położonego na osiedlu Bór w Skarżysku-Kamiennej.
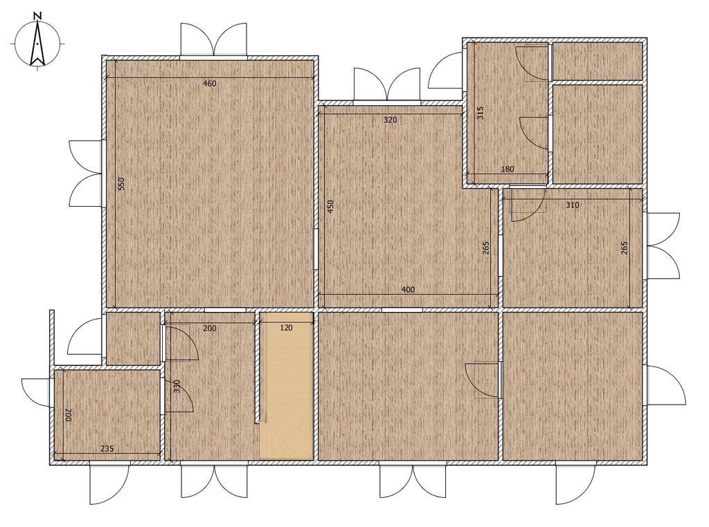
DOM
Parterowy, wolnostojący dom z lat 50tych, w dobrym stanie.
Cicha, spokojna okolica!!!
Nieruchomość sześciopokojowa, częściowo podpiwniczona, z zaadaptowanym poddaszem.
Dom o powierzchni użytkowej ok. 105m2, w skład którego wchodzą:
– pokój salonowy (25,3m²)
– pokój (16,5m²)
– sypialna (13,2m²)
– sypialna (10,2m²)
– kuchnia (8,2m²)
– łazienka (4,75m²)
– łazienka (3,65m²)
– przedpokój (5,7m²)
– przedpokój/klatka schodowa (10,5m²)
– wiatrołap (1,0m2)
– pomieszczenie gospodarcze (1,3m2)
– zaadaptowane poddasze użytkowe
STAN DOMU
Dom w dobrym stanie, do odświeżenia, lub remontu:
– budynek drewniany, otynkowany
– okna: PCV
– dach: płyta bitumiczna
– podłogi: panele podłogowe, płytki ceramiczne, deska podłogowa
– możliwość zmiany ustawienia pomieszczeń
– ogrzewanie oraz ciepła woda z pieca gazowego dwufunkcyjnego
DZIAŁKA
Działka o powierzchni 1223m2, całkowicie ogrodzona, z obszernym ogrodem.
W działce znajdują się podstawowe media:
– sieć wodociągowa
– sieć gazowa
– sieć elektroenergetyczna
– sieć kanalizacyjna
Na działce znajdują się również budynki gospodarcze, oraz altany ogrodowe.
OKOLICA
Nieruchomość położona na osiedlu Bór w Skarżysku-Kamiennej, które gwarantuje otoczenie lasów, położenie na uboczu, aczkolwiek blisko ciągów komunikacyjnych.
Osiedle ma charakter rezydencjonalny w którym dominuje zabudowa jednorodzinna. Przez lasy okalające osiedle od strony zachodniej i południowej przebiega rzeka Kamienna.
W bezpośrednim sąsiedztwie znajdują się sklepy spożywcze, oraz przystanki autobusowe. W okolicy znajduje się podstawowa infrastruktura, m.in sklepy, szkoła podstawowa, przedszkole, poczta, przystanki autobusowe, oraz stacja PKP Brzask.
Dojazd do działki od drogi prowadzącej do trasy DK42 (Końskie – Skarżysko-Kamienna), w odległości 2 km do trasy S7 (Gdańsk- Rabka Zdrój).
Działka z dojazdem drogą asfaltową, trasa DK42 (Końskie – Skarżysko-Kamienna), oddalona o 8 km do trasy S7 (Gdańsk- Rabka Zdrój).
Odległość do najbliższych miast:
Skarżysko-Kamienna- 10 km
Starachowice – 25 km
Końskie- 25km
Kielce- 40 km
Radom- 50km
Idealna okazja dla poszukujących domu w cichej, spokojnej, dobrze skomunikowanej okolicy.
Oferujemy darmową obsługę procesu kredytowania zakupu nieruchomości. Współpracujemy z wieloma bankami, dzięki czemu zawsze szukamy najtańszego dla Państwa rozwiązania.









