Mieszkanie 48 m2 z balkonem 1 piętro do remontu
Mam przyjemność zaprezentować Państwu dwupokojowe mieszkanie o powierzchni 48,4 m², zlokalizowane przy ul. Krasińskiego w Skarżysku – w jednej z najbardziej pożądanych lokalizacji osiedla Odrodzenia, w ścisłym centrum Skarżyska-Kamiennej.
MIESZKANIE – najważniejsze atuty
Dwupokojowe mieszkanie położone na pierwszym piętrze w czteropiętrowym bloku, z balkonem typu loggia. Nieruchomość usytuowana jest przy ul. Krasińskiego – w jednej z najlepszych lokalizacji na os. Odrodzenia.
– Dwustronna ekspozycja (północ–południe) – mieszkanie jasne i przewiewne
– Jasny pokój dzienny z wyjściem na balkon typu loggia
– Świetny układ – idealna baza do aranżacji według własnych potrzeb
– Osobna, widna kuchnia
– Łazienka z osobny WC
– Do mieszkania przynależy piwnica
Doskonałe parametry! Mieszkanie dwustronne, niezależne i ustawne pokoje.
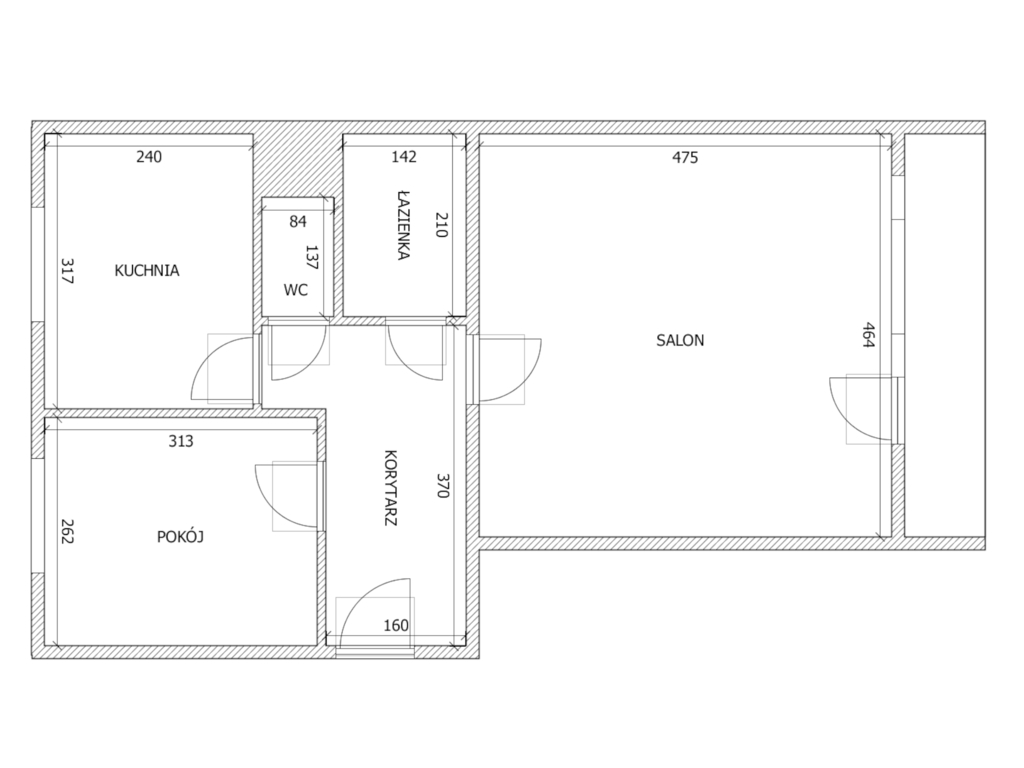
W skład mieszkania wchodzą:
– salon (22,0 m2) z dostępem na balkon
– sypialnia (8,2 m2)
– kuchnia (7,6 m2)
– łazienka (3,0 m2)
– WC (1,1 m2)
– korytarz (6,1 m2)
STAN MIESZKANIA
Mieszkanie w stanie do remontu
– okna PCV
– ogrzewanie miejskie
– ciepła woda z sieci miejskiej
RZUT mieszkania wraz z dokładnymi POMIARAMI dostępny w galerii ! ! !
BUDYNEK
Blok z 1983 roku, zarządzany przez wspólnotę mieszkaniową, po termomodernizacji, zabezpieczony domofonem. Klatka wyremontowana, czysta i zadbana.
Czynsz na poziomie około 700 zł przy jednej osobie obejmuje zimną i ciepłą wodę, ścieki, fundusz remontowy, utrzymanie części wspólnych oraz zaliczkę za ogrzewanie. Dodatkowe opłaty za prąd oraz gaz według zużycia.
Forma własności
Stan prawny w pełni uregulowany. Pełna własność.
Księga wieczysta do wglądu.
OKOLICA
Pożądana lokalizacja! Nieruchomość położona w ścisłym centrum miasta. JEDNA Z NAJLEPSZYCH LOKALIZACJI MIASTA!
W bezpośrednim sąsiedztwie znajduje niezbędna infrastruktura – Szkoła Podstawowa, Przedszkole, Urząd Miasta, pawilony handlowe (m.in. C.H. Hermes, Vendo Park), przystanki komunikacji miejskiej oraz międzymiastowej, instytucje publiczne (m.in. Poczta Polska), przychodnie lekarskie.
Dobrze skomunikowana okolica, łatwy dojazd do trasy S7 (Kraków-Warszawa)
Nie zwlekaj! Takie oferty znikają szybko.
Oferujemy darmową obsługę procesu kredytowania zakupu nieruchomości. Współpracujemy z wieloma bankami, dzięki czemu zawsze szukamy najtańszego dla Państwa rozwiązania.
Osoba odpowiedzialna za transakcję:
Paulina Piasta
tel. 603 550 212
Biuro Nieruchomości Family House
Oddział Skarżysko-Kamienna
Panorama
ul. Piłsudskiego 36
26-110 Skarżysko-Kamienna
tel. 603 550 212




















