Mieszkanie na I piętrze, 44,86m al. Tysiąclecia
Na sprzedaż mieszkanie z ogromnym potencjałem położone przy al. Tysiąclecia w Skarżysku-Kamiennej, ścisłe centrum miasta.
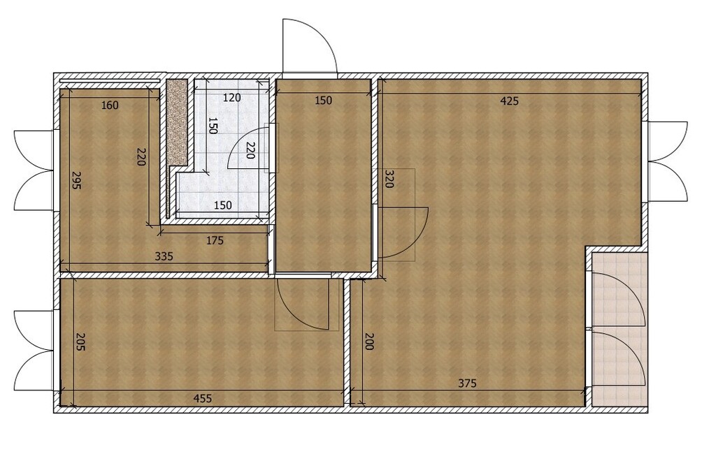
MIESZKANIE
Mieszkanie własnościowe z księgą wieczystą o powierzchni 44,86m² położone przy al. Tysiąclecia 18, osiedle Odrodzenia w Skarżysku-Kamiennej.
Dwupokojowe mieszkanie położone na I piętrze w czteropiętrowym bloku, z dostępem na balkon oraz z piwnicą.
Ekspozycja północ-południe.
Mieszkanie własnościowe z księgą wieczystą, w stanie do remontu, z ogromnym potencjałem!
W skład mieszkania wchodzą:
– pokój dzienny (21m²) z dostępem na balkon (0,9m x 2,0m)
– sypialnia (9,45m²)
– kuchnia (6,1m²)
– łazienka (2,9m²)
– przedpokój (4,8m²)
Do mieszkania należy również piwnica o powierzchni 4,8m².
STAN MIESZKANIA
Mieszkanie w stanie do remontu, z dużymi możliwościami związanymi z adaptacją wnętrza wedle uznania:
– okna PCV
– ogrzewanie z sieci miejskiej, podgrzewanie ciepłej wody użytkowej z piecyka gazowego
– duży POKOJ DZIENNY z dostępem na balkon z widokiem na stronę południową
– ustawna SYPIALNIA z ekspozycją północną
– osobna, widna KUCHNIA, częściowo umeblowana
– przestronna ŁAZIENKA z wanną oraz WC
– PRZEDPOKOJ z dużą szafą w zabudowie
BLOK
Blok z 1969 roku, zarządzany przez Partner Nieruchomości, zabezpieczony domofonem, z planowaną termomodernizacją,
Czynsz na poziomie około 700zł przy jednej osobie obejmuje opłatę za 4m³ wody oraz ścieków, fundusz remontowy, utrzymanie części wspólnych, wywóz nieczystości oraz zaliczkę za ogrzewanie. Dodatkowe opłaty za prąd, oraz gaz.
OKOLICA
Nieruchomość położona DOGODNEJ, dobrze skomunikowanej LOKALIZACJI, os. Odrodzenia, ścisłe centrum miasta!
Blok położony przy wyremontowanej al. Tysiąclecia, ze świetnie zagospodarowanym szerokim deptakiem, nową zielenią i małą architekturą.
Osiedle charakteryzuje się zabudową mieszaną, mieszkalno-usługowo-handlową.
W bezpośrednim sąsiedztwie znajduje niezbędna infrastruktura :
-Szkoła Podstawowa nr. 1 im. Tadeusza Kościuszki
-Prywatna Szkoła Podstawowa w Skarżysku-Kamiennej
-Prywatne przedszkole językowe „Little People”
-Przedszkole Publiczne nr 10 im. Kubusia Puchatka-pawilony handlowe (m.in. C.H. Hermes),
-przystanki komunikacji miejskiej oraz międzymiastowej, instytucje publiczne (m.in. Poczta Polska), przychodnie lekarskie.
Dobrze skomunikowana okolica, łatwy dojazd do trasy S7 (Kraków-Warszawa)
Oferujemy darmową obsługę procesu kredytowania zakupu nieruchomości. Współpracujemy z wieloma bankami, dzięki czemu zawsze szukamy najtańszego dla Państwa rozwiązania.
Osoba odpowiedzialna za transakcję:
Łukasz Świat
tel. 603 551 066
e-mail: lukasz.swiat@fhpolska.pl
Biuro Nieruchomości Family House
Oddział Skarżysko-Kamienna
Panorama
al. Piłsudskiego 36 (I piętro)
26-110 Skarżysko-Kamienna
tel. 603 551 066
________________________________________
Biuro Nieruchomości Kielce, Skarżysko-Kamienna, Starachowice, Szydłowiec, Radom, Końskie; Agencja Nieruchomości Kielce, Skarżysko-Kamienna, Starachowice, Szydłowiec, Radom, Końskie; Mieszkania Kielce, Skarżysko-Kamienna, Starachowice, Szydłowiec, Radom, Końskie; Nieruchomości Kielce, Skarżysko-Kamienna, Starachowice, Szydłowiec, Radom, Końskie; Działki Kielce, Skarżysko-Kamienna, Starachowice, Szydłowiec, Radom, Końskie; Domy Kielce, Skarżysko-Kamienna, Starachowice, Szydłowiec, Radom, Końskie;
























