Mieszkanie po kapitalnym remoncie 3pok 57m2 Bugaj
Mam przyjemność zaprezentować Państwu wyjątkowe, trzypokojowe mieszkanie o powierzchni 57,4 m², zlokalizowane przy ul. Bugaj w Suchedniowie. To idealna propozycja dla osób, które cenią sobie komfort, funkcjonalność i gotowe do zamieszkania wnętrze – bez konieczności dodatkowych nakładów finansowych.
MIESZKANIE – najważniejsze atuty
Trzypokojowe mieszkanie położone na pierwszym piętrze w czteropiętrowym bloku, z balkonem. Mieszkanie zostało zaprojektowane z myślą o komforcie i funkcjonalności.
– Dwustronna ekspozycja (wschód–zachód) – słońce o każdej porze dnia, jasne i pozytywne wnętrze.
– Nowoczesne, w pełni umeblowane wnętrze – wchodzisz i mieszkasz!
– Salon z wyjściem na balkon
– 2 niezależne sypialnie zapewniają prywatność każdemu domownikowi
– Osobna, widna kuchnia z nowoczesną zabudową i pełnym wyposażeniem AGD (płyta indukcyjna BOSH, piekarnik BOSH, zmywarka BOSH, lodówko-zamrażarka w zabudowie Whirlpool)
– Łazienka z kabiną prysznicową, pralką i suszarką (marki BEKO) zachwyca estetyką i wygodą
– Dodatkowa piwnica – idealna na rowery, przetwory czy sprzęt sezonowy.
Mieszkanie jest w stanie idealnym – po generalnym remoncie, który objął wymianę wszystkich instalacji, stolarki okiennej oraz montaż nowych sprzętów RTV i AGD. Zastosowano wysokiej jakości materiały wykończeniowe, a każde pomieszczenie zostało urządzone ze smakiem i dbałością o detale. Dodatkowym atutem jest światłowód rozprowadzony do każdego pokoju
Doskonała lokalizacja!
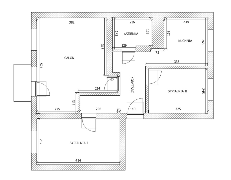
W skład mieszkania wchodzą:
– salon (18,8 m2) z dostępem na balkon
– sypialnia I (11,4 m2)
– sypialnia II (8,0 m2)
– kuchnia (6,3 m2)
– łazienka (3,7 m2)
– korytarz (7,2 m2)
STAN MIESZKANIA
Mieszkanie w stanie idealnym, po generalnym remoncie w 2024 r.
– nowe instalacje: elektryczna, hydrauliczna
– okna PCV
– ogrzewanie miejskie
– klimatyzacja marki Vesser
– światłowód rozprowadzony do każdego pokoju
– drzwi wewnętrzne PORTA
– piec gazowy Termet
RZUT mieszkania wraz z dokładnymi POMIARAMI dostępny w galerii ! ! !
BUDYNEK
Forma własności: Spółdzielcze własnościowe prawo do lokalu mieszkalnego z księgą wieczystą
Czynsz na poziomie około 530 zł przy jednej osobie obejmuje zimną wodę, ścieki, fundusz remontowy, utrzymanie części wspólnych oraz zaliczkę za ogrzewanie. Dodatkowe opłaty za prąd oraz gaz według zużycia.
OKOLICA
Mieszkanie znajduje się w samym sercu Suchedniowa, z widokiem na malowniczy zalew Suchedniowski.
Bezpośrednio pod blokiem: duży parking, plac zabaw i tereny zielone idealne na spacery.
W bezpośrednim sąsiedztwie znajduje niezbędna infrastruktura – szkoła, przedszkole, pawilony handlowe, supermarket, dworzec PKP, instytucje publiczne (m.in. Poczta Polska), przychodnia lekarskie.
Bliskość trasy S7 gwarantuje doskonałe połączenie z większymi miastami – do Kielc można dotrzeć w zaledwie 25 minut, a do Skarżyska-Kamiennej to zaledwie 10 kilometrów.
DLACZEGO WARTO?
To mieszkanie to idealne połączenie funkcjonalnego układu, świetnej lokalizacji i atrakcyjnej ceny. Możesz urządzić je dokładnie tak, jak chcesz – inwestując w komfort swojej rodziny albo przygotowując pod wynajem.
Nie zwlekaj! Takie oferty znikają szybko.
Oferujemy darmową obsługę procesu kredytowania zakupu nieruchomości. Współpracujemy z wieloma bankami, dzięki czemu zawsze szukamy najtańszego dla Państwa rozwiązania.
Osoba odpowiedzialna za transakcję:
Paulina Piasta
tel. 603 550 212
Biuro Nieruchomości Family House
Oddział Skarżysko-Kamienna
Panorama
ul. Piłsudskiego 36
26-110 Skarżysko-Kamienna
tel. 603 550 212

























