Jędrzejów, kawalerka, stan deweloperski 32,48 m2
Biuro nieruchomości Family House ma przyjemność przedstawić Państwu ofertę sprzedaży Apartamentu w stanie deweloperskim w nowej inwestycji Parkowa-Relaks w Jędrzejowie.
Fenomen nieruchomości polega na starannie zaplanowanych przestrzeniach wspólnych i mieszkalnych.
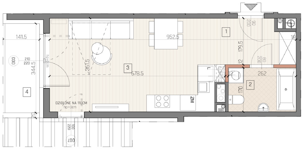
Nieruchomość to kawalerka z aneksem opisana na planach jako M4_KL2_02 na 1 piętrze czteropiętrowego budynku mieszkalnego „Parkowa Relaks”.
Mieszkanie o powierzchni 32,48 m2 składa się z 1 pokoju z aneksem oraz łazienki. Z mieszkania możemy wyjść na balkon o powierzchni 4,44 m2.
Dodatkowo zakupić można komórkę lokatorską oraz podziemny garaż.
Każdy posiadacz apartamentu w inwestycji ma możliwość korzystania z siłowni, sauny, pokoju majsterkowicza oraz bawialni które są na parterze budynku.
Mieszkanie ma widok za park.
Inwestycja odebrana będzie w 3 kwartale 2026 roku.
O budynku i jego lokalizacji:
Parkowa-Relaks to nowoczesny kompleks mieszkalny, który oferuje 57 mieszkań z różnorodnymi udogodnieniami, mającymi na celu poprawę jakości życia mieszkańców. Projekt ten charakteryzuje się niezrównaną jakością, funkcjonalnością oraz unikalną architekturą, która ma na celu stworzenie prestiżowego miejsca na mapie Jędrzejowa.
Apartamenty znajdują się przy ulicy Parkowej w Jędrzejowie, między Parkiem Miejskim a Zalewem. Ta lokalizacja zapewnia mieszkańcom idealne warunki do życia, będąc otoczonym zielenią i stanowiąc oazę spokoju w samym sercu miejskiej rekreacji.
Z lokalizacji do wybranych miejsc dojdziemy w kilka minut spacerem:
- Skatepark (154 m, 3 minuty spacerem)
- Przedszkole (234 m, 4 minuty spacerem)
- Sklep: Netto (261 m, 4 minuty spacerem)
- Piekarnia (262 m, 4 minuty spacerem)
- Sklep: Groszek (252 m, 4 minuty spacerem)
- Szkoła Podstawowa (356 m, 6 minut spacerem)
- Siłownia (469 m, 8 minut spacerem)
- Galeria Sekunda (834 m, 13 minut spacerem)
- Apteka (936 m, 14 minut spacerem)
Udogodnienia dla mieszkańców:
- Pokój majsterkowicza – Czyli w pełni wyposażony pokój z narzędziami ulokowany w piwnicy, służący jako zaplecze do różnych czynności, od majsterkowania przy autach, meblach aż po standardowy serwis rowerów.
- Sauna – tak, w inwestycji mieści się sauna dostępna dla mieszkańców. Jest to strefa relaksu i redukcji stresu szybkiego życia.
- Siłownia – dla każdego mieszkańca, o każdej porze dnia, dla każdego typu treningu, od ćwiczeń siłowych dla mężczyzn po kobiece delikatniejsze ćwiczenia na smukłą sylwetkę.
- Pokój zabaw – bezpieczna przestrzeń dla najmłodszych mieszkańców, umożliwiająca zabawę i integrację z rówieśnikami.
- Stacja uzdatniania wody – zapewnia mieszkańcom dostęp do czystej i zdrowej wody.
- Smart rozwiązania – technologie ułatwiające życie, takie jak bezkluczowy dostęp do budynku czy rezerwacja miejsc w częściach wspólnych.
- Garaż podziemny – oferuje łatwy dostęp do 74 miejsc parkingowych oraz 32 komórek lokatorskich.
- Stacja ładowania pojazdów elektrycznych.
Czy architektura i zamysł był przypadkowy?
Nie, ponieważ projekt został zaprojektowany z myślą o tworzeniu spójnej przestrzeni z charakterem architektonicznym budynku oraz otoczeniem. Wnętrza i części wspólne zostały zaprojektowane tak, aby były funkcjonalne i estetycznie dopasowane do potrzeb mieszkańców.
W budynku znajdzie się nowoczesna restauracja, która nawiązuje do ducha i atmosfery legendarnej restauracji Relaks, będącej miejscem niezapomnianych chwil. W lokalach na parterze znajdą się także punktu usługowo handlowe.
Apartamenty Parkowa-Relaks to inwestycja, która nie tylko oferuje komfortowe mieszkania, ale również tworzy społeczność, gdzie mieszkańcy mogą cieszyć się wspólnymi przestrzeniami i udogodnieniami, które ułatwiają codzienne życie i wprowadzają elementy luksusu i nowoczesności.
Jędrzejów na mapie Polski:
Jako że Jędrzejów mieści się przy drodze ekspresowej S7, która łączy morze z górami, daje to możliwości logistyczne dla każdego.
Dla tych którzy pracują w Krakowie, i szukają domu po zanim, Jędrzejów wydaje się być dobrym wyborem ze względu na drogę, która pozwala nam dojechać w 51 minut z Krakowa do Jędrzejowa.
Masz pytania?
Zadzwoń
Kamil Mietelski
603 539 353
Biuro Nieruchomości Family House




















