Mieszkanie z balkonem • 34m² • 1 piętro
Biuro Nieruchomości Family House ma przyjemność przedstawić Państwu ofertę sprzedaży wyjątkowej nieruchomości w Skarżysku-Kamiennej.
Mieszkanie po remoncie na I piętrze z balkonem wychodzącym na teren zielony to prawdziwa oaza w mieście.
Brak piecyka gazowego!
Niski czynsz!
MIESZKANIE
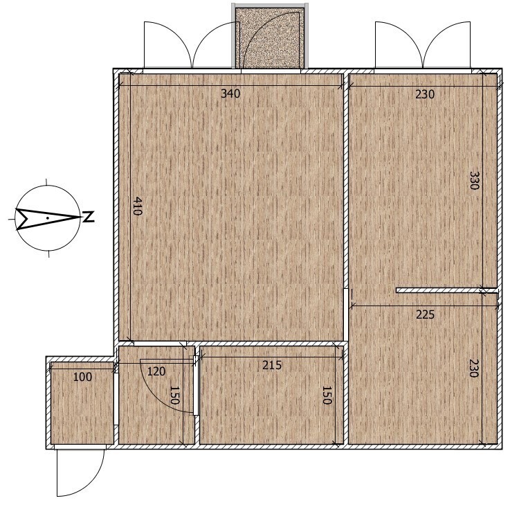
Mieszkanie o powierzchni 34,2m² znajduje się przy ul. Rejowskiej na Os. Przydworcowe.
Dwupokojowe mieszkanie z balkonem położone na I piętrze w czteropiętrowym bloku.
Idealna baza do stworzenia wnętrza w pełni dopasowanego do indywidualnych potrzeb i gustu. Najważniejsze prace zostały już wykonane – wykonano biały remont, co pozwala skupić się wyłącznie na aranżacji według własnych preferencji, takich jak dobór mebli czy wykonanie zabudowy kuchennej.
W skład mieszkania wchodzą:
– pokój przejściowy (14m²) z dostępem na balkon
– pokój (7,5m²)
– kuchnia (5,2m²)
– łazienka (3,2m²)
– przedpokój (3m²)
Do mieszkania przynależy również piwnica.
Ekspozycja wschodnia.
FORMA WŁASNOŚCI
Stan prawny w pełni uregulowany.
LOKAL STANOWIĄCY ODRĘBNĄ NIERUCHOMOŚĆ z księgą wieczystą.
Czynsz w wysokości ok 360zł + koszty za śmieci, koszty za wodę oraz prąd.
STAN MIESZKANIA
W ciągu ostatnich 10 lat przeprowadzono remont obejmujący:
-wykonanie nowych wylewek podłogowych oraz montaż paneli, okna PCV,
-zamontowano nowe drzwi zewnętrzne antywłamaniowe,
-instalacja elektryczna i hydrauliczna została w pełni wymieniona,
-mieszkanie posiada ogrzewanie oraz ciepłą wodę z sieci miejskiej, bez piecyka gazowego,
-pokój przy kuchni może pełnić funkcję jadalni, ale również sypialni – istnieje możliwość wykonania ścianki oddzielającej go od kuchni.
BLOK
Blok zarządzany przez wspólnotę mieszkaniową, zarządzaną przez ZRB Duda J.
Bezpośrednio pod blokiem oraz wzdłuż ulicy znajdują się ogólnodostępne miejsca parkingowe
OKOLICA
Nieruchomość położona DOGODNEJ, dobrze skomunikowanej LOKALIZACJI, os. Przydworcowe, z łatwym dostępem do ścisłego centrum miasta.
Blok położony z dala od ruchliwych ulic z łatwo dostępnymi miejscami parkingowymi.
W bezpośrednim sąsiedztwie znajduje niezbędna infrastruktura – szkoły, przedszkola, pawilony handlowe (m.in. Nowy Manhattan), przystanki komunikacji miejskiej oraz międzymiastowej, instytucje publiczne (m.in. Poczta Polska), przychodnie lekarskie oraz dworzec PKP Skarżysko-Kamienna.
Dobrze skomunikowana okolica, łatwy dojazd do trasy S7 (Kraków-Warszawa)
Oferujemy darmową obsługę procesu kredytowania zakupu nieruchomości. Współpracujemy z wieloma bankami, dzięki czemu zawsze szukamy najtańszego dla Państwa rozwiązania.









